A Complete Guide to Submitting Aircon Installation Reports to HDB and BCA in Singapore
submit an installation report to the Housing & Development Board (HDB) every time you change your aircon compressor and fan coil, and this includes when installing a second-hand unit. Submitting Aircon Installation Reports to HDB and BCA in Singapore
www.handyman.sg
11/26/20258 min read


HDB Requirements for Aircon Installation
You generally must submit an installation report to the Housing & Development Board (HDB) every time you change your aircon compressor and fan coil, and this includes when installing a second-hand unit. The specific document is known as Form AC-02 (or the HDB aircon installation report).The Housing and Development Board (HDB) in Singapore has established clear requirements for air conditioning installations to ensure the safety, aesthetics, and structural integrity of residential buildings. Understanding these requirements is crucial for homeowners and contractors to comply with regulations while installing air conditioning units.
Firstly, the HDB mandates that all air conditioning installations must adhere to specific installation guidelines, which include using only approved methods and materials. Contractors must ensure that the chosen air conditioning unit is suitable for installation in HDB flats. It is advisable to select units that have been certified by reputable authorities. Homeowners must also verify that their contractors possess the necessary licenses and are familiar with HDB's requirements.
Restriction on external units is another essential aspect of HDB's guidelines. Homeowners must ensure that external compressor units are installed in designated areas as determined by HDB. These areas are typically on the service balcony or external wall, and any deviation from the specified locations may result in penalties or the requirement to remove the installation. Furthermore, air conditioning units must not obstruct common walkways or drainage systems, to ensure that these facilities remain accessible for all residents.
Compliance with HDB regulations not only ensures the efficiency and safety of air conditioning systems but also preserves the aesthetic appeal of HDB estates. Homeowners must submit an application to HDB for approval before commencing installation. This application includes details regarding the intended installation method and the type of air conditioning unit. The HDB's review process ensures that all proposed installations align with community standards and enhance the living environment.
In summary, adhering to HDB's requirements for aircon installation is paramount. By following the established guidelines, homeowners and contractors can contribute to a harmonious living atmosphere within HDB developments.
Who Needs to Submit the Aircon Installation Report?
The submission of aircon installation reports in Singapore is a regulated process that involves multiple parties. Primarily, homeowners are the first stakeholders who must ensure compliance with the guidelines established by the Housing and Development Board (HDB) and the Building and Construction Authority (BCA). Homeowners are responsible for hiring qualified contractors to perform the installation, and they must ensure that these contractors are licensed and adhere to the necessary standards and building codes. Consequently, homeowners must coordinate with these licensed contractors to ensure that all requisite documentation, including the aircon installation report, is accurately filled and submitted.
Contractors play a crucial role in the submission of the aircon installation report. They are responsible for the actual installation of the air conditioning system and are required to provide detailed reports that reflect the work completed. This includes confirming that the installation meets both safety regulations and technical specifications. Contractors must be vigilant in not just completing the installation, but also ensuring that their work is documented properly, as failure to do so could result in penalties for both the contractor and the homeowner.
Additionally, there can be other stakeholders involved in the installation process, such as designers or project managers, particularly in larger projects or those involving multiple air conditioning units. These individuals may hold some responsibility for ensuring that the installation reports are properly compiled and submitted. In scenarios where the installation was completed under a larger construction project, the main contractor may take on the duty of submitting the aircon installation report on behalf of the individual homeowners.
How to Submit Aircon Installation Report to HDB: Step-by-Step
Submitting an aircon installation report to the Housing and Development Board (HDB) in Singapore is a crucial step to ensure compliance with local regulations. The process is straightforward, and adherence to each guideline ensures a smooth submission. The primary document required for this submission is Form AC-02, the official aircon installation report form.
To begin, the first step is to complete Form AC-02 accurately. This form requires detailed information including particulars of the air conditioning unit, installation date, and technician details. Ensure that all required fields are filled out to avoid any submission errors. After filling out the form, gather supporting documentation. Typical documents include the aircon unit's installation invoice, warranty, and a copy of the technician’s certification, which serves as proof that the installation was conducted by a qualified professional.
Next, you must choose your submission method. HDB offers both online and offline submission options. For online submissions, navigate to the HDB's e-service portal and log in with your SingPass. Access the relevant section and upload the completed Form AC-02 along with the supporting documents. If you prefer to submit your report offline, you may deliver hard copies directly to your nearest HDB Branch Office. In this case, it is advisable to make an appointment prior to your visit to avoid long wait times.
Regarding deadlines, it is important to submit your report within 14 days from the installation date to ensure compliance with HDB regulations. Keeping to this timeline helps avoid potential penalties. After submission, you will receive an acknowledgment from HDB, confirming that your aircon installation report has been received. This acknowledgment can serve as valuable proof of compliance with HDB guidelines.




Common Mistakes to Avoid
1) Using the old form during submission
2) Hiring non-BCA-certified installers who may not understand the Building Control Act requirements.
3) Failing to engage the proper professionals for new wiring installation works.
4) Installing aircon in common areas or common corridors before approval is received.
5) Improper installation that doesn't meet the approved location standards.
Consequences of Not Submitting Aircon Installation Reports
Neglecting to submit an aircon installation report to the Housing and Development Board (HDB) may lead to various repercussions that can have significant implications for homeowners and contractors alike. One of the primary consequences is the imposition of fines. The HDB has established a stringent regulatory framework to ensure compliance with installation protocols, and failure to adhere to these regulations can result in penalties. These financial repercussions can vary in magnitude depending on the severity of the violation and the specific regulations contravened.
Besides monetary fines, non-compliance may also necessitate the mandatory removal of the air conditioning unit. The HDB mandates that all installations comply with safety standards and guidelines to protect the integrity of residential buildings. In cases where reports are not submitted, the authorities have the right to order homeowners or contractors to dismantle units that do not meet regulatory requirements. This not only incurs additional costs for removal and reinstallation but also causes inconvenience to residents who depend on air conditioning for comfort.
Moreover, failing to submit the required reports can affect a homeowner's ability to sell their property in the future. Prospective buyers would typically request verification that all installations are compliant with HDB regulations. Absence of proper documentation may raise red flags, potentially leading to a reduction in property value or complications during the sale process.
Lastly, repeated non-compliance can lead to more severe measures, including the possibility of legal action against the responsible parties. The repercussions of neglecting to submit an aircon installation report extend beyond immediate fines and removals, affecting both the operational and financial aspects of residential living. Understanding these consequences underscores the importance of diligence when dealing with air conditioning installations.
Regular Maintenance Tips to Ensure Safety
Regular maintenance of air conditioning units is essential not only for optimal performance but also for ensuring safety and compliance with the Housing and Development Board (HDB) standards in Singapore. Homeowners must prioritize the upkeep of their air conditioning systems to prolong their lifespan and prevent potential hazards arising from neglect.
One of the primary maintenance steps is to routinely clean or replace air filters. Ideally, filters should be checked every month and cleaned or replaced as necessary, typically every three months. Clogged filters can lead to reduced airflow, affecting the unit's efficiency and causing it to overheat. Another important step is checking the condenser and evaporator coils. Dust and debris can accumulate on these coils, decreasing the system's ability to absorb and dissipate heat. Homeowners should aim to clean these components annually, preferably before the peak cooling season.
Additionally, homeowners should inspect the drainage system to prevent blockages. A clogged drain can cause water leaks, prompting mould growth and potential damage to the home interior. It is advisable to check the drain line every couple of months and to flush it with a mixture of vinegar and water to clear any build up. Regularly examining the insulation on refrigerant lines is also important. This insulation helps keep the cooling efficient and safe; if it is damaged, it should be replaced immediately.
Lastly, while DIY maintenance steps are crucial, hiring a professional service annually is recommended. Professional technicians can perform comprehensive safety checks and servicing that go beyond basic cleaning, helping to identify and resolve issues before they become significant problems. Following these regular maintenance tips allows homeowners to ensure their air conditioning units remain safe, dependable, and compliant with HDB regulations.
Frequently Asked Questions
When it comes to aircon installation reports and submissions in Singapore, homeowners often have multiple questions regarding the procedures and requirements of the Housing and Development Board (HDB) and the Building and Construction Authority (BCA). Below are some common inquiries along with detailed answers to provide clarity.
What information needs to be included in the aircon installation report? The aircon installation report must comprise essential details such as the type and make of the air conditioning unit, installation date, the address of the property, and the name of the installation contractor. This report serves as a record of the installation process complying with HDB and BCA guidelines.
How do I submit the aircon installation report to HDB? Homeowners can submit the aircon installation report to HDB through the e-service portal on the HDB website. The submission process requires logging into your HDB account and following the prompts to upload the necessary documents. It is important to ensure that all required information is accurate to avoid delays in processing.
Is there a deadline for submitting the installation report? Yes, there is typically a deadline for submission after the installation is completed. Homeowners are required to submit the installation report within a specified period, usually within 14 days, to comply with HDB and BCA regulations.
Do I need professional help for the installation report? While homeowners can complete the report on their own, it is advisable to seek assistance from professional contractors who are familiar with HDB and BCA submission processes. These professionals can ensure that all aspects of the report are comprehensively addressed, meeting the necessary standards. Such inquiries are vital for maintaining adherence to statutory demands while ensuring effective air conditioning installation and servicing in residential properties across Singapore.
Form AC-02 Dated 28 March 2024 (New Form)
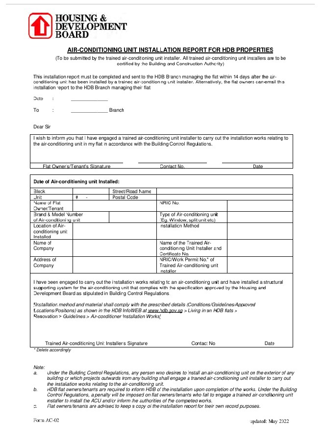
Form AC-02 Dated May 2022 (Old Form)
* Please Use the New Form AC-02 Dated 28 March 2024 (New Form)
Need Help With Your Aircon Installation?
Don't risk fines or delays. Let our BCA-certified technicians handle the job, including the full HDB submission on your behalf.
Contact Us at www.handyman.sg or Book a Free Consultation today.






Form AC-01 Dated 28 March 2024 (New Form) Private Property


SERVICES
Expert handyman services for all your needs.
Contact
ABOUT
hello@handyman.sg (enquiry only)
aaron@handyman.sg
+65 8336 6682
Copyright © 2024 Arctic Breeze Engineering| UEN: 53493028W | Terms of Use | Privacy Policy
Arctic Breeze Engineering
71 Woodlands Ave 10, #05-16 Woodlands Industrial Xchange, Singapore 737743
Reno Guys Pte Ltd
71 Woodlands Ave 10, #07-10 Woodlands Industrial Xchange, Singapore 737743
+65 6993 8888
Email: aaron@renoguys.com.sg
Visit: www.renoguys.com.sg
BUSINESS / FACTORY OFFICE ADDRESS
Contact